售完
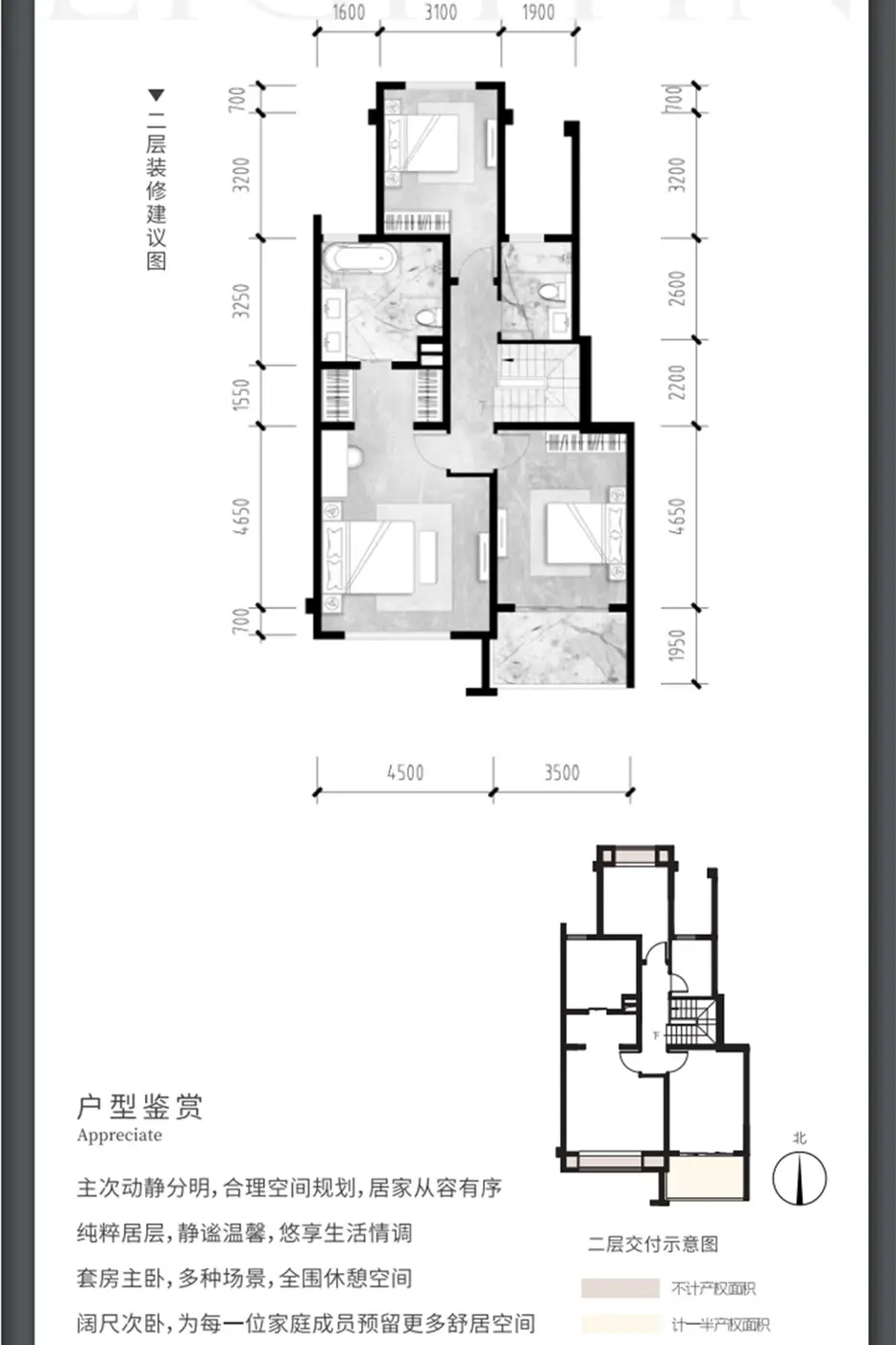
下叠A1户型
下叠A1户型 4室2厅1厨3卫
65535万建筑面积210.00㎡
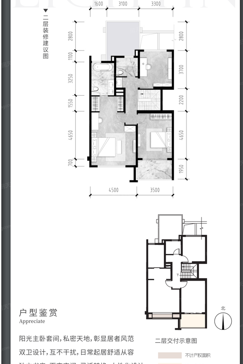
上叠A3户型
上叠A3户型 4室2厅1厨3卫
65535万建筑面积186.00㎡
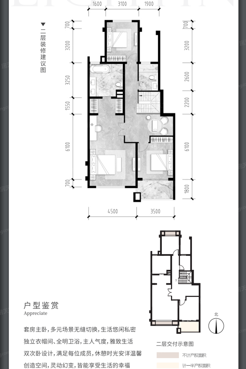
中叠A2户型
中叠A2户型 4室2厅1厨3卫
65535万建筑面积183.00㎡