-
优惠活动承翰·庭玺主推78-85㎡精致两房,均价约11.28万/㎡ 2024-04-01
承翰·庭玺现正火热销售中,主推建筑面积约78至85平方米的精巧两居室产品,满足您对品质生活的追求。 目前项目另备有约119至175平方米的优质住宅房源在售,整体均价约为11.28......
-
优惠活动承翰庭玺热销进行时,均价约11.28万/平起 2024-03-04
项目目前正火热顺销中,涵盖多种优质户型以满足不同客户需求。 其中,建面约78㎡与85㎡的精致户型,备案均价约为10.2万元/㎡,空间布局合理,性价比突出;此外,项目还推出了建面约......
-
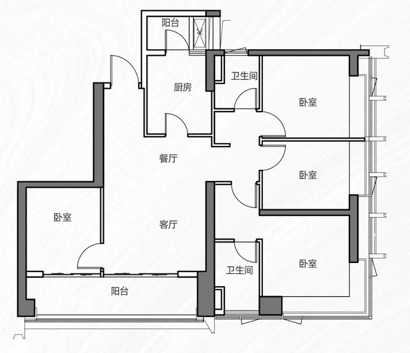
楼盘动态承翰·庭玺在售多种户型住宅,涵盖78-175平米不等 2024-01-15
承翰·庭玺目前有多种精品住宅在售,其中包括建筑面积约78至85平方米的两房户型,以及面积段约为119至175平方米的宽敞住宅。 项目整体均价控制在每平方米约11.28万元,定位高......
-
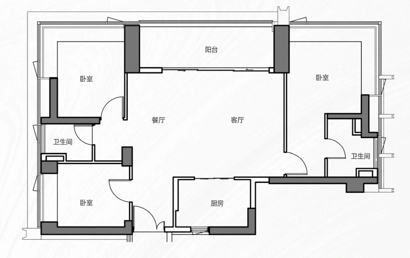
楼盘动态承翰湾尚国际·骏玺全新推出78-85平米精致两房户型 2023-07-31
近日,承翰湾尚国际·骏玺正式发布了全新升级的两房户型产品,建筑面积约78至85平方米,空间布局合理,充分满足现代家庭居住需求。 项目秉承高品质设计理念,以匠心工艺打造理想居所,为......
-
楼盘资讯承翰湾尚国际·骏玺全新推出精致2房户型,面积段为78至85平米 2023-07-26
近日,承翰湾尚国际·骏玺盛大推出全新精品住宅产品。 项目此次主推的户型为两居室设计,建筑面积约78至85平方米,充分满足购房者对舒适居住空间的需求。 该户型布局方正合理,功能分......
2室2厅
2室2厅
2室2厅
3室2厅
4室2厅
- 深圳市承翰投资开发集团有限公司
- 70年
- 24480
- 240182
- 40%
- 6.00
- 暂无信息
- 540
- 住宅9.8元/㎡/月
- 深圳市承翰物业管理有限公司
- 有装修
消息通知(您的信息将严格加密)
承翰庭玺 在售
112800 元/㎡
微信扫码拨号









